5 400 000.00 ₽
Город
Волгоград
Район
Кировский
Адрес
ул.им. Кирова 96
Добавлено
02.01.2026
Описание
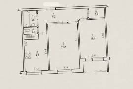
Кировский р-он, ул. им. Кирова 96, 1/9, зас/лодж.
Продается 2-х комн. квартира с капитальным качественным ремонтом.
Пласт.окна, гардеробная, выровнены стены и пол, стены-обои и керамогранит, пол - стяжка и кварц-виниловый ламинат, установлены счетчики на воду, современные межкомнатные и входная двери и т.д.
Оставляем новый кухонный гарнитур и сплит-систему.
Остальная мебель ( вся новая ) по договоренности.
Развитая инфраструктура. Детские площадки, школа, садик, магазины и т.д.
Квартира в собственности более пяти лет.
Подходит под ипотеку.
Один взрослый собственник.
Продается 2-х комн. квартира с капитальным качественным ремонтом.
Пласт.окна, гардеробная, выровнены стены и пол, стены-обои и керамогранит, пол - стяжка и кварц-виниловый ламинат, установлены счетчики на воду, современные межкомнатные и входная двери и т.д.
Оставляем новый кухонный гарнитур и сплит-систему.
Остальная мебель ( вся новая ) по договоренности.
Развитая инфраструктура. Детские площадки, школа, садик, магазины и т.д.
Квартира в собственности более пяти лет.
Подходит под ипотеку.
Один взрослый собственник.
- 282 Просмотра(ов)













